
Розкриття Секретів: Висота Фартуха Від Підлоги
Висота фартуха від підлоги — це та штука, про яку ти, можливо, ніколи не думав. Але, під час ремонту кухні, ця дрібниця дивовижним чином змушує твій головний біль зростати в рази. Буває так, стоїш у магазині, дивишся на плитку і думаєш: “На яку висоту її вішати?”
Чому це важливо?
Актуальність питання не викликає сумнівів. Коли справа доходить до практичності, висота фартуха може сильно вплинути на очищення. Плюс, це створює естетичний вигляд твоєї кухні. Гармонія має бути в усьому: від морального до просторового.
Стандартні розміри
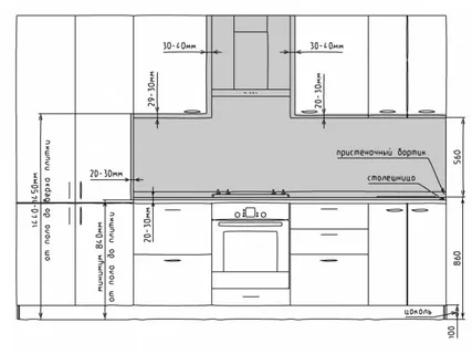
Отже, ти вже настроївся на ремонт і виникає питання: “Яка ж вона та стандартна висота фартуха від підлоги?” Ну, зазвичай це між 50 і 60 см. Втім, все залежить від висоти твоєї робочої поверхні: якщо, наприклад, вона вище стандарту, фартух теж може піднятися.
Як виміряти правильно?
- Визнач висоту робочої поверхні. Стандарт — 85–90 см.
- Виміряй висоту до підвісних шаф. Отримана величина повинна вміщувати фартух.
- Залиш достатньо місця для вентиляції, якщо потрібно.
Це штука, де важлива точність. Одна маленька помилка — і все. Все буде виглядати так, ніби роботизовані інопланетяни робили твою кухню. Чесно, неприємно відповісти: “Що за кут тут у тебе? Ти що, вдома одуванчики вирощуєш?” Нікому такого не побажаєш.
Вплив матеріалу на вибір
Ти знав, що не всі матеріали однакові? Юнак, якщо застряг у думках щодо вибору, знай — плитка легша у догляді, тоді як дерево виглядає гуртірок стильно. До речі, у багатьох випадках плитка виглядає класніше!
- Плитка — проста у догляді, різноманітність кольорів, довго служить.
- Дерево — естетично, додає затишку, частіше вимагає догляду.
- Метал — ультра-модерново, техно-стиль, стійкий до зносу.
У рамках експерименту, металеві фартухи використовують не тільки на кухні, а й у ванних кімнатах. Та це вже звучить як нахабство, правда?
Місцеві запити: Київ проти Львова
Чесно, є різниця між великим містом на кшталт Києва та затишним Львовом. Київ — це основна база модерну. Львів відчуває історію. І, відповідно, підходи можуть варіюватись.
| Місто | Популярний стиль | Матеріали |
|---|---|---|
| Київ | Модерн | Метал, плитка |
| Львів | Класичний | Дерево, камінь |
Експериментальне обрамлення
Тепер, як щодо експериментів? Так, чувак, це звучить дивним, але у мистецтві немає меж! Грайте з текстурами, використовуйте старовинні матеріали, поєднуйте різні техніки. Чув про фотообої з відбитками улюблених графіті? Це стане твоїм наступним кульмінаційним проектом!
Заключення
Питання висоти фартуха від підлоги може здаватися дрібницею, але цей аспект дизайну багато про що може сказати. Справжня алхімія полягає в деталях. Пам’ятайте, що фартух може стати центральною частиною вашого дизайну інтер’єру. Тому, нехай це буде Your Masterpiece. Так, тобі це під силу!







