
Відстань від підлоги до фартуха: Як знайти золоту середину
Ви коли-небудь задумувалися, яка ідеальна відстань від підлоги до фартуха? Для одних це дрібниця, для інших — питання життя і смерті дизайну. Розгляну, чому це критично важливо.

Насамперед, відстань впливає на загальне сприйняття інтер’єру кухні. Неправильно підібраний фартух може зіпсувати навіть найкрутіший ремонт. Дехто сперечається до хрипоти, обираючи між сантиметрами, але давайте зануримося глибше.
Чому варто звернути увагу на висоту фартуха?
- Зручність використання — сміття поверхонь, що розміщені неправильно, сповільнює процес готування.
- Естетичний вигляд — правильна висота підкреслює стиль.
- Запобігання забрудненню стін — ключ до тривалого життя вашого ремонту.
Оптимальні розміри для установки
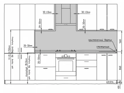
На мій скромний погляд, гарною практикою є підбирати відстань від підлоги до фартуха в межах 45–60 сантиметрів. Чому саме так? Відповідь закладена в анатомії людини. Зробіть цю відстань меншою, і ви можете відчути, що кухня тисне на вас. Більша — і ризикуєте отримати захаращений вигляд.
| Висота від підлоги | Вплив на комфорт |
|---|---|
| 45 см | Оптимальне середовище для більшості користувачів |
| 50 см | Гармонія практичності та стилю |
| 60 см | Максимальна зручність при великому кухонному просторі |
Що треба враховувати під час виміру?
Тут річ не лише у сантиметрах. Шукайте своє рішення з урахуванням кількох факторів. Як мінімум, зверніть увагу на конфігурацію самої кухні, висоту стелі, навіть, вік своїх дітей. Уявіть, як це може виглядати через п’ять років — хто готуватиме вашу вечерю?
- Уникайте перебільшення у фешн.
- Залиште місце для експерименту.
- Пам’ятайте про функціональність.
На що ще впливає відстань від підлоги до фартуха
Неочікувано для багатьох, але це може впливати на освітлення. І так, підсвічування виглядає набагато краще, коли фартух встановлений під правильним кутом. Розбиттям світла займаються освітлювачі, але поблажок не чекайте, якщо сама конструкція лажова.
А як щодо вашого настрою? Нестандартні рішення в дизайні можуть зробити вашу кухню місцем, де ви проводите більше часу.
Кілька порад для тих, хто втратився
- Експериментуйте з матеріалами. Можливо, вам потрібен не звичайний, а дзеркальний фартух?
- Поговоріть з майстром. Він знає, що робити, навіть якщо ви впевнені у своєму виборі.
- Робіть фото на кожному етапі, щоб мати можливість повернутись до початку. Іноді звичний вигляд нагадає про важливість правильного рішення.
Завершальні думки
Не забудьте: у голові залиште простір для творчості, але не забувайте про прості речі. Відстань від підлоги до фартуха — це лише вершина айсберга у світі дизайну кухні. Робіть вибір з розумом і дайте фартуху стояти там, де йому місце.







