
- Висота кухні від підлоги: обираємо оптимальні параметри
- Чому потрібно піклуватись про висоту кухні
- Проблеми з неправильною висотою
- Яка вона, оптимальна висота кухні?
- Як виміряти правильно
- Локальні вимоги та традиції
- Зберігання та висота шафок
- Особливі моменти і деталі
- Кондиції приміщення
- Додаткові аксесуари та їх висота
- Секрети дизайну від профі
- Недосконалі кухні своїми руками
- Висновок
Висота кухні від підлоги: обираємо оптимальні параметри
Висота кухні від підлоги—це питання, яке може здаватися непомітним, але насправді важливе. Це, знаєте, дрібниця, яка може суттєво вплинути на комфорт та функціональність вашої кухні. Говоримо про те, як вибрати висоту кухонних елементів так, щоб не було боляче ані спині, ані очам.
Чому потрібно піклуватись про висоту кухні

Добре, розгляньмо спочатку, чому висота взагалі має значення. Бо не хочеться, щоб усе було криво-косо, еге ж? Функціонал змінюється кардинально, якщо висота меблів кухні неправильна. Уявіть собі марудну працю на низькому столі — і спина біда, і зап’ястя болять. Чи, наприклад, високий стіл — тоді оце витягуватись до нього, як мавпа на дереві.
Проблеми з неправильною висотою
- Дискомфорт при готуванні: якщо висота стільниці не підходить, доведеться гнутися чи надто витягуватися.
- Небезпека травм: плинність рухів порушується, що підвищує ризик нещасних випадків.
- Незручне зберігання: доступ до полиць може бути утруднений, що заважатиме їх ефективному використанню.
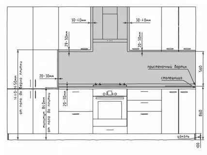
Яка вона, оптимальна висота кухні?
Тож, яка ж та ідеальна висота? Не існує єдиної формули. Але є загальні рекомендації, які допомагають підібрати. Стандарт в середньому—85-90 см від рівня підлоги до поверхні стільниці. Чому так? Бо це середнє між зручністю стояння та роботою руками.
Як виміряти правильно
Важливо враховувати зріст тих, хто користуватиметься кухнею. А саме: відстань від підлоги до ліктя, коли стоїте.—Це допоможе зрозуміти, як краще адаптувати меблі під ваші потреби. Облиште думки про статистичну висоту! Головне — ваша особиста зручність.
- Встаньте прямо біля стіни, розслабте плечі.
- Виміряйте відстань від підлоги до ліктя.
- Додавайте 5-10 см для комфортної висоти кухні.
Локальні вимоги та традиції
В кожному регіоні свої смаки та правила. Наприклад, в Україні чи Польщі традиційно обирають меншу висоту, ніж у країнах Північної Європи. Любите кухню з атмосферою бабусиної хати? Вона буде нижчою, проте затишнішою. І тут не обійтися без місцевих особливостей.
Зберігання та висота шафок
Висота шафок теж грає роль. Зазвичай це 60-70 см. Чому? Тому що так зручніше зберігати і не треба вставати на драбину. Якщо ви високий, робіть вище — це ж так просто!
| Елемент | Середня висота (см) | Коментарі |
|---|---|---|
| Стільниця | 85-90 | Оптимальна для середнього зросту |
| Шафи | 60-70 | Зручно для більшості користувачів |
Особливі моменти і деталі
Кондиції приміщення
Кухня на мансарді? Там свої особливості! Потік повітря, освітлення… Все це треба враховувати. Щоб не бути, як у поганому фільмі, коли все відлітає.
Додаткові аксесуари та їх висота
Не забувайте про мікрохвильовку, кавоварку та інші штуки. Все це вимагає свого розміщення і місця. Для них важливо залишити окрему поличку чи стільницю.
Секрети дизайну від профі
Майстри можуть підказати хитрощі в розміщенні. Наприклад, переносні тумбочки—це взагалі геніально. Вони на колесах, їх можна перетягнути будь-куди. Або ж відкриті полиці, які створюють ілюзію простору.
Недосконалі кухні своїми руками
Рушили у DIY? Колорит саморобних меблів завжди приваблює. Хоча є ризик помилитися, але ж це такий кайф робити самотужки! І тоді висота кухні від підлоги—це ваша справа. Робіть, як душа прагне.
Висновок
Отже, висота кухні від підлоги — складніше, ніж здається, але цілком вирішувана проблема. Правильно підберете, то життя перетвориться на казку, а стояння на кухні стане задоволенням. Головне, пам’ятайте про комфорт, безпеку та власний стиль. І не бійтеся експериментувати!







